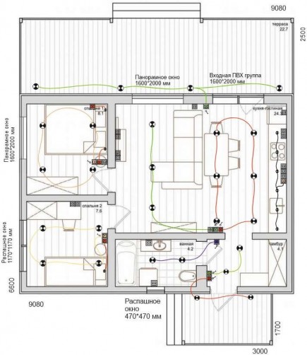
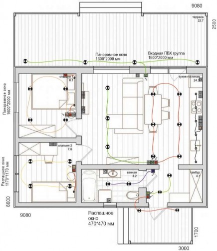
Пространство дома объединяет кухню и гостиную и спальные комнаты.
Подойдет для отдыха или постоянного проживания семейной пары или компании из 2-4 человек.
ДОПОЛНИТЕЛЬНЫЕ УСЛУГИ ПОДРЯДА по Новосибирску:
• Свайный фундамент
• Доставка и кран
• Септик
• Подвод воды и электричества
Выбор местоположения
Мы свяжемся с Вами в течение дня.